「飲食店の内装、実は”ほとんど設計段階で決まります”」
・席数が思ったより取れない
・動線が悪く、オペレーションしにくい
・完成してから使いづらさに気づく
こういった失敗は、実際の現場でもよく見かけます。
しかし一度工事をしてしまうと、簡単にやり直すことはできません。
だからこそ大なのが、開業前の “設計段階”です。
□よくある失敗例
①席数が取れていない
売上に直結する席数が、設計次第で変わります。
「席数が2席違うだけで、月売上が大きく変わることもあります」

②動線が悪い
スタッフの動きが悪いと、回転率やサービスの質に影響します。

③見た目重視になっている
店舗デザインは大事ですが、使いやすさとのバランスが重要です。

□なぜ失敗が起こるのか?
「誰に相談していいのか分からない」
「工事のタイミングで考え始める」
「とりあえずオープンを急ぎあらゆる問題を検討できていない」
□解決方法
LEBON DESIGNでは、開業前段階で
“失敗しないレイアウト”を作る初期プランをご提案しています。
□初期プラン内容
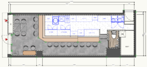
・平面レイアウト
(例)ラーメン店平面レイアウト図

・コンセプト設計
(例)カフェコンセプト提案資料

・簡易パース
(例)鉄板焼き

□こんな方におすすめ
・これから開業予定の方
・物件はあるが内装に悩んでいる方
・まだ工事するか迷っている方
・物件を決める前にどんな店舗レイアウトができるのか知りたい方
(既存図面が無い場合、現地調査を行います)
□料金
¥80,000〜
※ご相談内容によってお見積りいたします。
□まとめ
内装は完成してからではなく、設計段階でほぼ決まります。
後悔しない店舗づくりのために、まずは計画から始めてみてください。
□CTA
工事前の今が一番重要です。まずは初期プランからご相談ください。
Instagram DMでも受け付けています。


